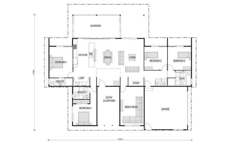
Gullwing 263m²

4 3 1

If you're looking for a large family home that ticks all the boxes, the Gullwing could be it. The entry courtyard leads into a beautifully lit open plan living area at the home's heart, and bedrooms cluster off this main area. With two ensuite bedrooms and a family bathroom, this design is as luxurious as it is practical. Enjoy the large sunroom during the dry season, and have plenty of space to relax when the Queensland weather gets wild.

This page is brought to you by www.lockwood.co.nz. Browse Lockwood's wide range of plans.

Get in touch

Contact us today for a free builders consultation