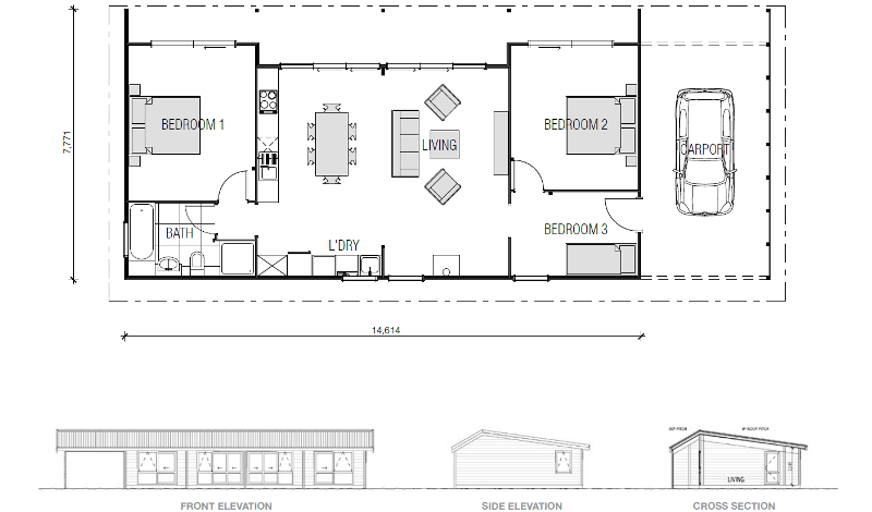
Littlewing 94m²

3 1 1

This compact 3 bedroom, 1 bathroom home measures 94m². Designed with the living area at the centre, everyone can meet in the central entertaining space. The gullwing shaped roof provides excellent shade for those hot summer days lounging by the pool and keeps the home cool while the sun beats down. This kit home can be built on poles for a sloping block, so will suit any block. Get in touch with your Whitsunday builder for more information.

This page is brought to you by www.lockwood.co.nz. Browse Lockwood's wide range of plans.

Get in touch

Contact us today for a free builders consultation