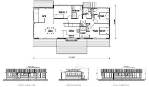
Nelson 103m²

3 2 Optional

A modern twist on a classic design. This compact 3 bedroom, 2 bathroom home measures 103m². With a spacious open plan living area and large patio straight out to the veranda, the Nelson is perfect for entertaining. The family bedrooms are clustered around a central hallway, giving every room plenty of natural lighting throughout the day. Add a carport to the design to protect your motor from the elements, and extend the decking for even more entertaining space. If your block has a gradient, this home can be constructed on poles.

This page is brought to you by www.lockwood.co.nz. Browse Lockwood's wide range of plans.

Get in touch

Contact us today for a free builders consultation