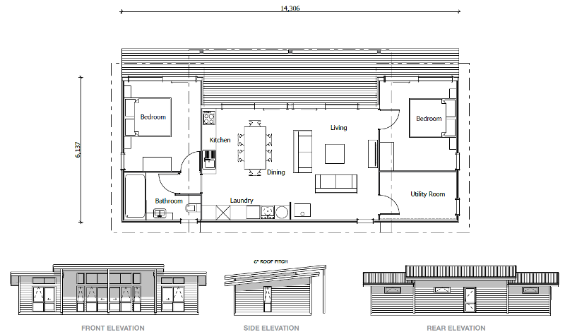
Papai 79m²

2 1 Optional

The Papai is only 79m², but you'd easily be fooled into thinking it’s much bigger. With a tall glass frontage, this design lets in lots of natural light and gives a sense of space. The bedrooms are at either end of the property, so everyone can come together in the central entertaining area. A decked area stretches across the entire length of the home, so there's plenty of entertaining space that extends from the inside to the exterior.
This kit home can be built on poles for a sloping block, so will suit any terrain. Get in touch today for pricing and more details.

This page is brought to you by www.lockwood.co.nz. Browse Lockwood's wide range of plans.

Get in touch

Contact us today for a free builders consultation