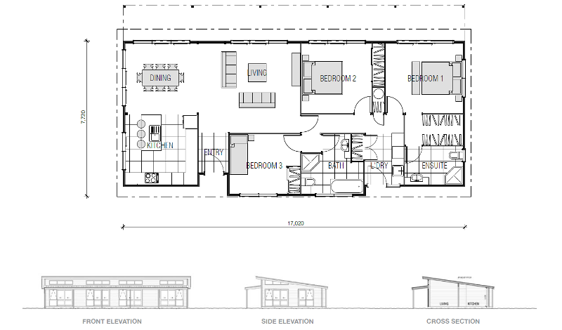
Te Rakau 125m²

3 2 Optional

To maximise natural light, you need a lot of windows. The clerestory windows in the Te Rakau design fill every spot with light, giving a beautiful sense of spaciousness. The bedrooms are situated together, while one end of the building is reserved for daily activities. Build a deck around the property to give a seamless transition between the outside and in, so you can enjoy your home whatever the Queensland weather brings.

This page is brought to you by www.lockwood.co.nz. Browse Lockwood's wide range of plans.

Get in touch

Contact us today for a free builders consultation